- Location:
 Kingston, MA
Status:
Design Development
Size:
320 gsf
Project Role:
Architectural Designer
Project Information:
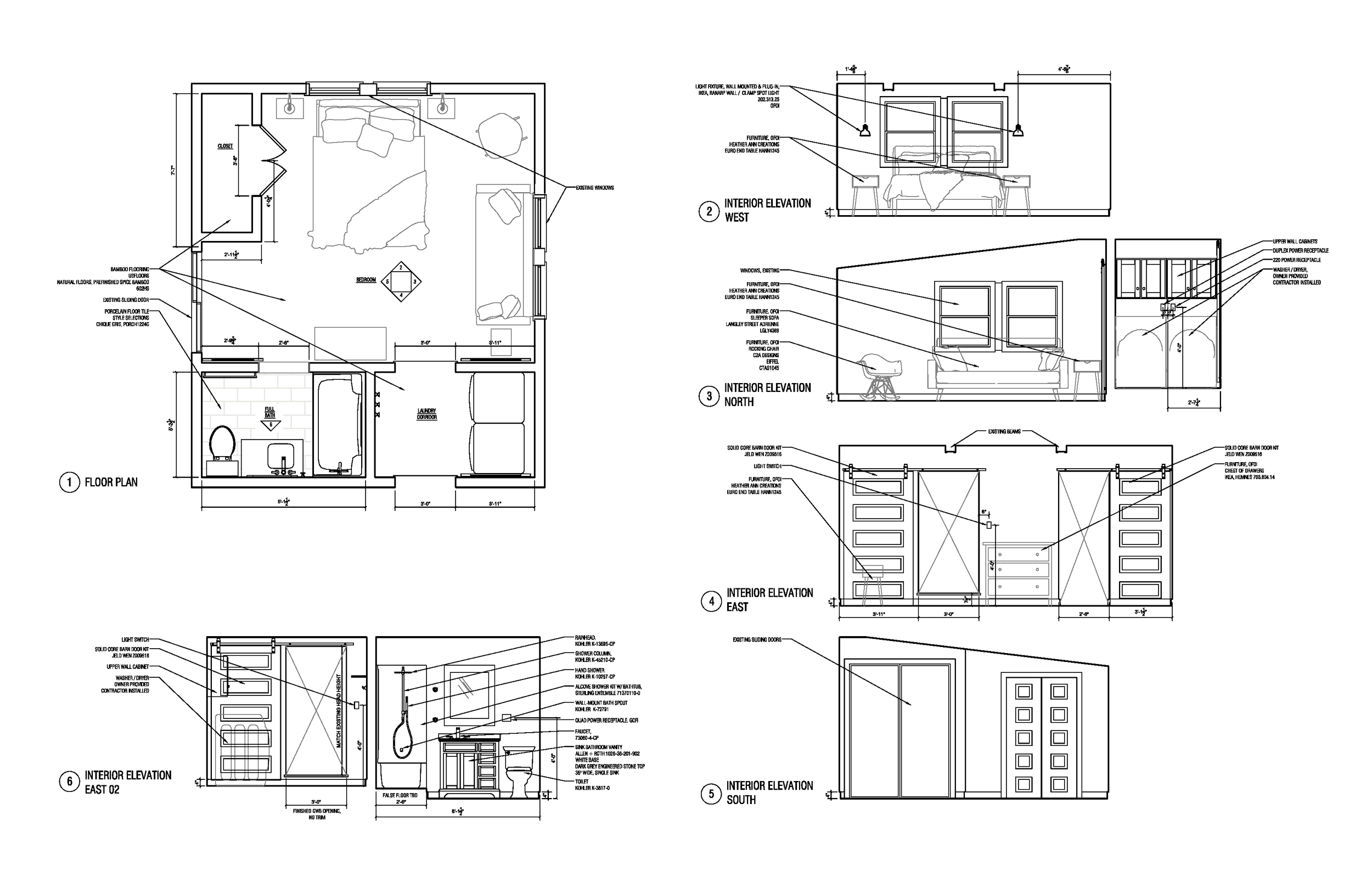
Design and pricing package for a 320 gsf renovation of an existing space. This project will see a storage space renovated into a guest suite. Program elements include an in-law suite with it's own exterior access and a full bath; access to the main living area though a shared laundry corridor.
Design challenges for this project include pragmatic budgeting, plumbing/electrical coordination and aggressive timeline (baby is on coming and grandpa and grandma will be traveling across the pond for an extended stay).
Initial On-Site Sketch
